Sub listings
| Title | Type | Price | Beds | Baths | Size | Availability Date |
|---|---|---|---|---|---|---|
| The Brindley Collection | Apartment | £270,000 | 1 | 1 | 478 | Completed |
Description
A beautifully designed 1 bedroom apartment for sale in Birmingham, set within the prestigious canalside development of Glasswater Locks, offering a refined lifestyle in one of the city’s most dynamic and fast-growing locations.
Positioned on the first floor and extending to approximately 478 sq ft, this elegant residence has been thoughtfully crafted to maximise space, light and functionality, making it an ideal choice for both homeowners and investors seeking a premium city-centre property.
Property Documents
Address
Open on Google Maps- Address: Belmont Row, Birmingham, B4 7RQ.
- City: Birmingham
- State/county: West Midlands
- Zip/Postal Code: Birmingham, B4 7RQ
- Area: Birmingham City Centre
- Country: United Kingdom
Details
Updated on April 13, 2026 at 2:29 pm- Property ID 7980
- Price Starting From £218,000
- Property Size 478 Sq Ft
- Bedroom 1
- Bathroom 1
- Year Built Completed
- Property Type Apartments
- Property Status New Homes, For Sale
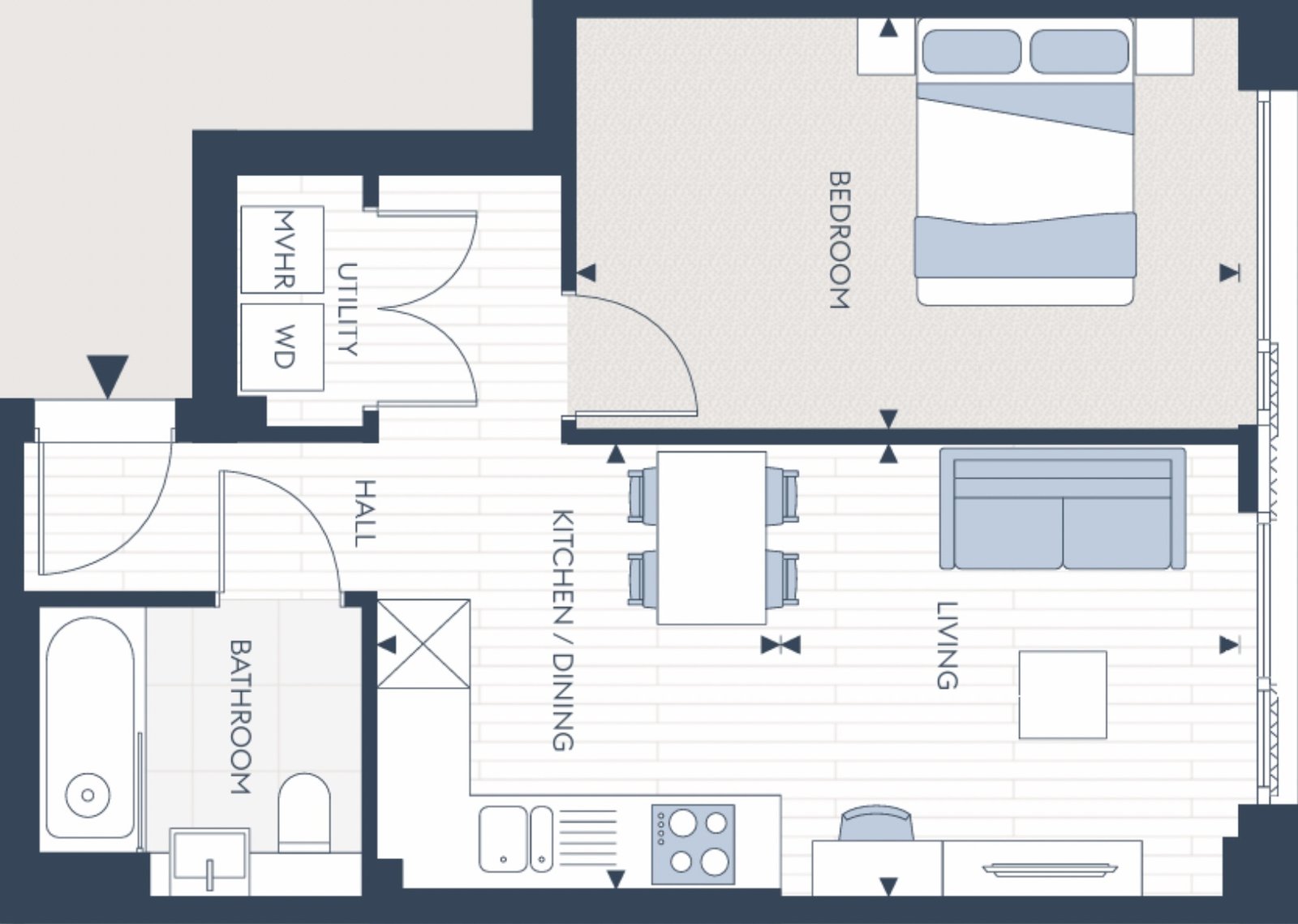
Floor Plans
- Size: 478
- 1
- 1
- Price: £218,000
Description:
1 bedroom apartment floor plan in Birmingham offering approximately 478 sq ft of internal living space. The layout features a modern open-plan kitchen, living and dining area designed for efficient everyday living, complemented by integrated storage. The double bedroom provides a comfortable and flexible space, while the contemporary bathroom is positioned conveniently off the main hallway, creating a practical and well-balanced city apartment layout.
Video
Contact Information
View ListingsSimilar Listings
2 Bedroom Apartment for Sale in Belgravia SW1 | 8 Eaton Lane
23-47 Grosvenor Gardens Mews North, London SW1W 0DH, UK Details1 Bedroom Apartment for Sale in Belgravia SW1 | 8 Eaton Lane
23-47 Grosvenor Gardens Mews North, London SW1W 0DH, UK Details
- Londra Estate Team





